Dàn Nóng Điều Hòa Multi Mitsubishi SCM50ZS-S1 17,100BTU 2 Chiều
20.720.000 ₫
Product Highlights
Giá đã bao gồm thuế VAT
– Bảo hành 2 năm
– Sản xuất tại Thái Lan
Liên Hệ Có Giá Tốt: 082.2222.716
In stock
Mô tả
SCM50ZS-S1 là dàn nóng loại 3 chiều thuộc dòng điều hòa multi Mitsubishi công suất làm lạnh 17,100BTu và công suất sưởi 20,500BTU. Dàn nóng này sử dụng ga R410A, nguồn điện 1 pha. Model SCM50 này cho phép kết nối tối đa với 3 dàn lạnh với tổng công suất là 21,000BTU.
1. Các kiểu dàn lạnh có thể kết nối với dàn nóng điều hòa multi SCM50ZS-S1
* Treo tường: SRK20ZSX SRK25ZSX SRK35ZSX SRK50ZSX ; SRK20ZSS SRK25ZSS SRK35ZSS SRK50ZSS ; SRK25ZSPS SRK35ZSPS SRK50ZSPS
* Tủ đứng đặt sàn: SRF25ZSX SRF35ZSX SRF50ZSX
* Cassette âm trần: FDTC25VH FDTC35VH FDTC50VH
* Giấu trần nối ống gió: SRR35ZS SRR50ZS; FDUM50VH
* Áp trần: FDE50VH

Các kiểu dàn lạnh kết nối với dàn nóng SCM50ZS-S1
2. Thông số kỹ thuật của dàn nóng điều hòa multi SCM50ZS-S1
– Nguồn điện: 1 pha, 220-240,50Hz
– Công suất lạnh: 5.0(1.8-7.1)kW
– Công suất sưởi: 6.0(1.4~7.5)kW
– Công suất điện làm lạnh: 1.05(0.6~2.15)kW
– Công suất điện sưởi: 1.21(0.55~2.58)kW
– EER làm lạnh: 4.76
– COP sưởi: 4.96
– Dòng điện hoạt động tối đa: 14A
– Độ ổn công suất làm lạnh: 61dB(A)
– Độ ổn công suất sưởi: 63dB(A)
– Độ ồn áp suất làm lạnh: 48dB(A)
– Độ ồn áp suất sưởi: 50dB(A)
– Lưu lượng gió làm lạnh/sưởi: 41m3/phút
– Kích thước: 640×850(+65)x290mm
– Trọng lượng tịnh: 49kg
– Kích cỡ đường ống lỏng: 6.35×3Ømm
– Kích cỡ đường ống hơi: 9.52×3Ømm
– Dãy nhiệt độ hoạt động ngoài trời làm lạnh: -15~43oC
– Dãy nhiệt độ hoạt động ngoài trời sưởi ấm: -15~24oC
– Số dàn lạnh kết nối 3 dàn
– Tổng công suất dàn lạnh: 8.5kW ~ 29,000BTU.
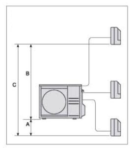
* Chiều dài đường ống ống ga và độ chênh lệch tối đa của dàn nóng multi SCM50ZS-S1

Chiều dài đường đường ống multi SCM50ZS-S1
– Chiều dài cho 1 dàn lạnh: dưới 25 mét
– Tổng chiều dài tương đường ống: dưới 40 mét
– Độ cao chênh lệch từ dàn lạnh thấp nhất (A): dưới 15 mét
– Độ cao chênh lệch từ dàn lạnh cao nhất (B): dưới 15 mét
– Độ cao chênh lệch tối đa giữa các dàn lạnh (C): dưới 25 mét
– Chiều dài đường ống gas đã nạp: 40 mét
3. Đặc điểm nổi bật của dàn nóng điều hòa multi SCM50ZS-S1
– Công suất dàn nóng mạnh mẽ, hiệu quả và êm ái
– Máy đạt mức hiệu suất năng lượng rất cao nhờ áp dụng công nghệ biến tần, máy có thể biến đổi công suất phù hợp theo yêu cầu làm mát hoặc sưởi ấm. Giúp cho máy đạt được nhiệt độ cài đặt nhanh chóng và giữ nhiệt độ ổn định qua thời gian tiết kiệm khoảng 30% so với máy có công nghệ không biến tần.
– Dàn nóng SCM50ZS sử dụng máy nén rotor kép nên độ ồn thấp. Máy vẫn hoạt động làm mát hoặc sưởi ấm khi nhiệt độ ngoài trợi là -15 độ C.

Dàn nóng SCM50ZS-S1 có thể hoạt động khi nhiệt độ ngoài trời -150C
– Model SCM50 được thiết kế nhỏ gọn có thể lắp vào những không gian nhỏ hẹp, kích thước 640×850(+65)x290mm.
Bạn phải đăng nhập để đăng bài đánh giá.


Đánh giá
Chưa có đánh giá nào.